Lifestyle Properties of Maine Logo

United Country Lifestyle Properties of Maine

white leaf

Find Your Dream Home

33 Lynn DriveCaribou, ME 04736Price: $479,000

  • Price: $479,000
  • Est. Mortgage of $/month
  • 31 Days on Market
$
$
%
$/month over payments
Federal 30-year interest rate: 6.22% last updated on Nov 6, 2025
* All Figures are estimates. Check with your bank or proposed mortgage company for actual interest rates.
This product uses the FRED® API but is not endorsed or certified by the Federal Reserve Bank of St. Louis.
  • $479,000List Price
  • 3Bedrooms
  • 3Bathrooms
  • 1.7Acreage
  • 2,993Square Feet
Active

Listing Tools

Listed by Kieffer Real Estate
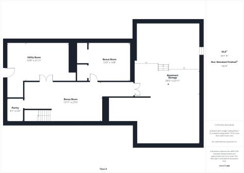
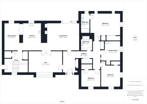
Experience this beautifully maintained home in one of Caribou's most coveted neighborhoods. Situated on a spacious 1.7-acre lot-the largest in the subdivision-this property offers both privacy and elegance. Enjoy outdoor relaxation with the spacious deck and above-ground pool included, perfect for entertaining and leisure. This one-story home features three generous bedrooms, including a primary suite with a full bathroom. The well-designed kitchen, inviting entryway, and comfortable living room create a warm and functional living space. A versatile den and a spacious laundry room (easily convertible to an additional bedroom) provide flexibility to suit your needs. The finished basement expands your living options with a large bonus/game room, an additional office or exercise room, and abundant storage throughout. Located in town within a well-maintained neighborhood, the home is cared for with exceptional attention to detail by the sellers. Additional highlights include two oversized sheds for storage, a heated 3-car garage with a workbench, utility sink, and easy access to the basement. Don't miss this exceptional opportunity to own a meticulously kept home with outstanding amenities and ample space for relaxation and entertainment. Schedule your showing today!

Property Details of 33 Lynn Drive

Property Details

Interior Features

Exterior Features

Utilities and Appliances

Other Details

Map Location

Listing data is derived in whole or in part from the Maine IDX & is for consumers' personal, non commercial use only. Dimensions are approximate and not guaranteed. All data should be independently verified. ©2025 Maine Real Estate Information System, Inc. All Rights Reserved. equal opportunity housing logo   Privacy Policy

Lifestyle Properties of Maine participates in ©2025 Maine Listings Internet Data Exchange program, allowing us to display other Maine IDX Participants' listings. This website does not display complete listings. Certain listings of other real estate brokerage firms have been excluded. Mortgage figures are estimates. Check with your bank or proposed mortgage company for actual interest rates. This product uses the FRED® API but is not endorsed or certified by the Federal Reserve Bank of St. Louis.

Hi there! How can we help you?

Contact us using the form below or give us a call.

Send Us A Message:

I agree to receive marketing and customer service calls and text messages from Lifestyle Properties of Maine. To opt out, you can reply 'stop' at any time or click the unsubscribe link in the emails. Consent is not a condition of purchase. Msg/data rates may apply. Msg frequency varies. Privacy Policy.

Do not fill in this field:

This site is protected by reCAPTCHA and the Google Privacy Policy and Terms of Service apply.

Hi there! How can we help you?

Contact us using the form below or give us a call.

Send Us A Message:

Do not fill in this field:

This site is protected by reCAPTCHA and the Google Privacy Policy and Terms of Service apply.

Hi there! How can we help you?

Contact us using the form below or give us a call.

Send Us A Message:

Do not fill in this field:

This site is protected by reCAPTCHA and the Google Privacy Policy and Terms of Service apply.

Do not fill in this field:

This site is protected by reCAPTCHA and the Google Privacy Policy and Terms of Service apply.

Do not fill in this field:

This site is protected by reCAPTCHA and the Google Privacy Policy and Terms of Service apply.

Do not fill in this field:

This site is protected by reCAPTCHA and the Google Privacy Policy and Terms of Service apply.

$

Do not fill in this field:

This site is protected by reCAPTCHA and the Google Privacy Policy and Terms of Service apply.